Fraud Blocker
Capannone commerciale a Trevi (PG)
Via Francesco Petrarca, Pigge, Trevi PG, Italia
  • €427,000.00

Descrizione

VAQ 68

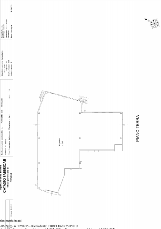
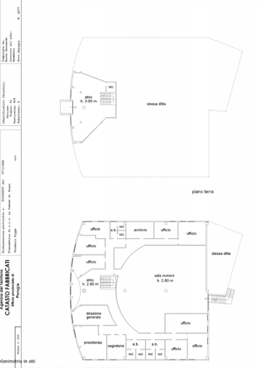
L’immobile è costituito da un capannone commerciale su 2 piani, suddiviso in più unità immobiliari e cosi composto: al PT ingresso,bagno,2 magazzini e zona benessere. Al P1 uffici, servizi e area espositiva.
Oltre a questo c’è un alloggio per il custode comprensivo di zona giorno, camera e bagno, raggiungibile da scala esterna indipendente.
Nello specifico l’intero edificio è suddiviso in 5 unità immobiliari cosi articolate:-magazzino al PT in unico locale di 210 mq, uffici al P1 con bagno di 885 mq, alloggio del custode al P1 di 84 mq, centro benessere al PT di 175 mq e magazzino al Pt di 175 mq. Libero subito.

Per maggiori info contattare il 3341052046

Panoramica

  • Capannone, Magazzino
  • Tipologia
  • 1
  • Camera da letto
  • 3
  • Bagni
  • 0
  • Garage
  • 1444
  • 2007
  • Anno di costruzione

Prenota un tour

Tipo di Tour
  • Indirizzo via Francesco Petrarca
  • Città Trevi
  • Stato/regione Umbria
  • Codice Postale 6039
  • Nazione Italia

Dettagli

Aggiornato il Dicembre 23, 2025 at 11:52 am
  • ID Immobile: Vaq 68
  • Prezzo: €427,000.00
  • Dimensioni proprietà: 1444
  • Camera da letto: 1
  • Vani: 5
  • Bagni: 3
  • Garage: 0
  • Anno di costruzione: 2007
  • Tipologia: Capannone, Magazzino

Dettagli aggiuntivi

  • Stato Immobile: Buono
  • Piano: 1
  • Destinazione: Commerciale
  • Riscaldamento: Centralizzato

Classe Energetica

  • Classe energetica: G
  • Indice globale di rendimento energetico: 0
  • A+
  • A
  • B
  • C
  • D
  • E
  • F
  • 0 | Classe energetica G
    G
  • H

Caratteristiche

0 Recensione

Ordina per:
Lascia una recensione

Lascia una recensione

Annunci Simili

Menu

Home

Immobili

Contatti

Privacy

Chi Siamo

Cookie Policy

Privacy Policy

Revolution Immobiliare, Piazza Giovanni Magherini Graziani, 3, 06012 Città di Castello PG

Confronta Strutture

Confronta
1
  • 1